ホーム
賃貸物件をお探しの方
売買物件をお探しの方
不動産を貸したい
スタッフ紹介
ケイティーホームズの案内
岡山県岡山市東区広谷 中古戸建の募集情報
ホーム
|
物件探しを依頼する
|
ログイン
|
未公開物件から探す
|
お気に入りに登録した物件
0
お店に来店予約する
お問い合わせ
電話でのお問い合わせは
03-5823-6590
営業時間:(定休日:)
@
LINE
お部屋探し相談
ホーム
賃貸物件をお探しの方
売買物件をお探し方
不動産を貸したい
スタッフ紹介
ケイティーホームズの案内
TOP
>
売買物件検索
> 売買物件詳細
岡山県岡山市東区広谷 中古戸建
岡山県岡山市東区広谷 中古戸建
所在地
岡山県岡山市東区広谷
交通
赤穂線 大多羅駅 徒歩23分
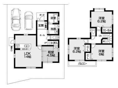
間取り/建物面積
2LDK
/ 66.24m²
価格
1,200
万円
構造/階/築年
- - / - - / 1976年
土地面積/土地権利
136.80m² / - -
都市計画/用途地域
- - / 第一種低層住居
その他の制限
-
情報更新日
2026年05月09日
情報有効期限
2026年05月23日
取引態様
仲介
設備条件/設備備考
シューズインクローゼット / BSアンテナ / 防犯鍵 / ビルトインガレージ /
岡山県岡山市東区広谷 中古戸建お問い合わせ先
会社名
ソフトハウス株式会社
住所
東京都台東区浅草橋5−3ー2
TEL
03-5823-6590
物件番号
0075-00000018
この物件の周辺環境マップ
この物件にメールでお問い合わせ
Copyright (C) ソフトハウス株式会社